Villa Adria apartments 1

The villa space is designed to suit a family of 3-5 or for rental, but at the same time remains flexible and customizable. The total area of ​​the house is 210 m². There are 6 rooms available, suitable for bedrooms.

Specification Details
Total Area 230 m²
Living Space 190 m²
Number of Floors 2 (two full floors)
Number of Rooms 5 (3 bedrooms, 1 living room, 1 office or additional room)
Bathrooms 3 (depending on the layout)
Garage Attached / detached for 1–2 cars
Terrace Area 25 m²
Outdoor pool area  3×5 m  ( 15 m² )
Roof Type Pitched / flat / gabled
Facade Finish Decorative plaster, wood, stone, or composite panels
Windows Triple-glazed PVC or aluminum, A++ energy efficiency
Heating System Air-to-water heat pump with underfloor heating
Ventilation Mechanical with heat recovery (HRV system)
Sewage System Municipal / local
Electrical Supply 3-phase (16–25 A)
Plot Size 1,500 m² (15 ares)
Energy Efficiency Class A+ or A++ (according to EU standards)
Year of Construction e.g., 2024 (new build)
  • Apartment 1st floor - 1
  • Apartment 1st floor - 2
Villa Adria apartments 1st floor - first floor 1-1-jp
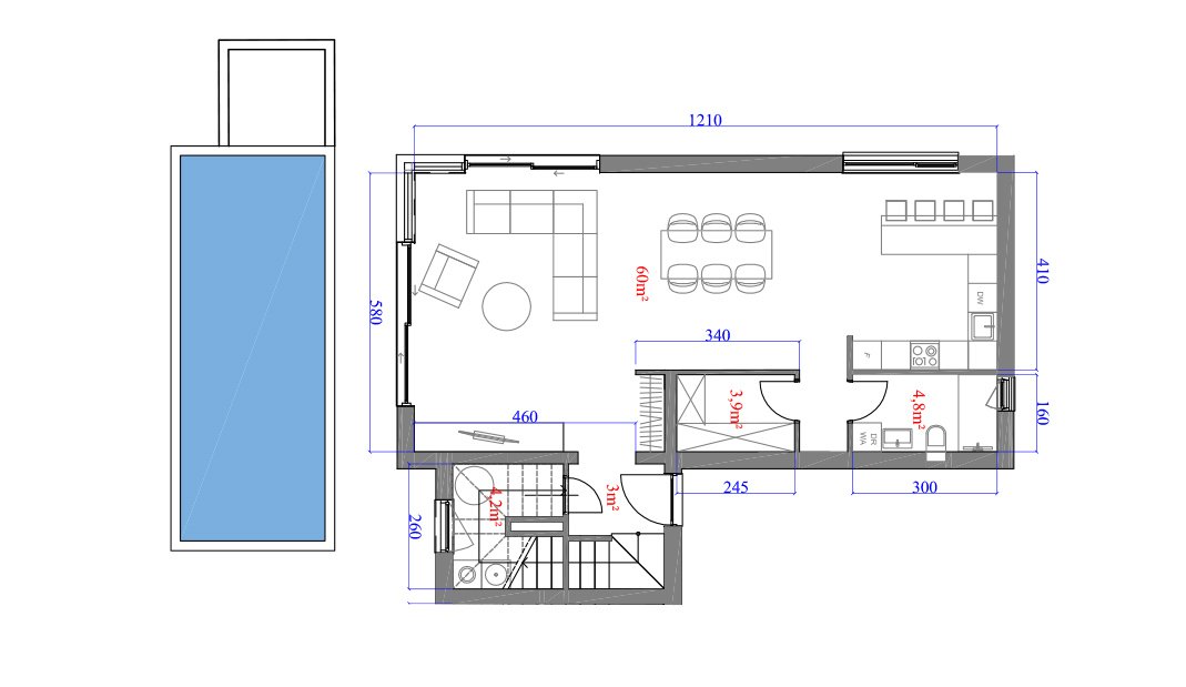
Nr. Specification first floor Details
1-3 Dining room – kitchen area 66,7 (m2)
1-2 WC Area 4,8 (m2)
1-1 Cloakroom Area 11,96 (m2)
1-4 Corridor – staircase Area 5,44 (m2)
1-5 Swimming pool Area 21 (m2)
Villa Adria apartments 1st floor - first floor 1-2-jp
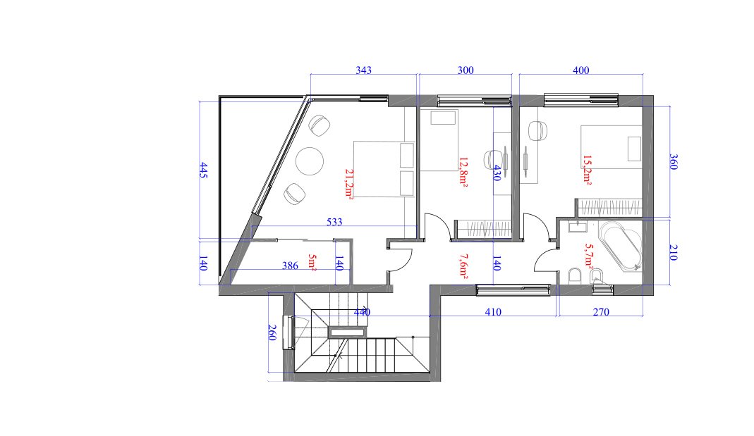
Nr. Specification first floor Details
2-1 Bedroom – 1 area 32,72 (m2)
2-2 Bedroom – 2 Area 12,9 (m2)
2-3 Bedroom – 3 Area 14,40 (m2)
2-4 WC Area 5,67 (m2)
2-5 Corridor – staircase Area 11,24 (m2)
2-6 Terrace Area 9,36 (m2)
Kroatija2
Kroatija1
Kroatija4
Kroatija5
Kroatija3
Kroatija6

Leave a Reply

Your email address will not be published. Required fields are marked *